OFFSHORE WIND

Conceptual Design

  • Providing design basis – environmental conditions
    – for wave, wind, current, sub soil
  • Compiling datasheet – key performance indicators
    – for loads, long term project items
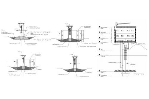
  • Characteristic items – 2D and 3D-CAD Rendering
    – specs, cost estimation, T&I, anchoring
  • Design matters – arrangements, layouts, room book,
    types of foundations and structures

Basic Design

  • Providing backbone of platform projects – list of drawings
    – for assignment and controlling
  • Buildup of 3D Modelling – data based design
    – for hull, assembly, outfitting and drafting
  • General Arrangement Plan (GAP) – covering complete project
    – for owner and third parties
  • Approval matter – naval & strength calculation,
    steel & tank plans, HV rooms, cable pull in

Detailed & Hull Production Design

  • Providing backbone of yard and manufacturer side
    – preparation
    – ready for planning
  • Hull material – standards, panels, parts, flat/angle/bulb/T-profiles
    – for purchase/construction decisions
  • Hull production – design review - nesting, BOM, panel/weld line
    – for workshop drawings
  • Workshop drawings – frame table, hull floor stock
    – for detailed design to production site